两个餐厅
更多内容就在:
国内餐厅设计案例
商业设计
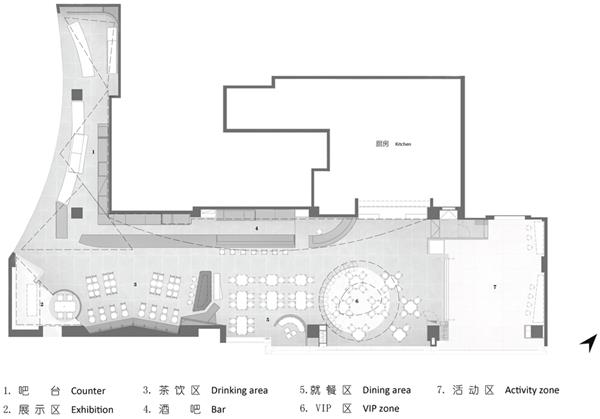
两个餐厅_3544495两个餐厅该建筑位于中国长沙,由MurMurLab设计完成,总规模为600平方米。全新的餐厅包含两个主要区域:偏速食的PHO,主要经营长沙当地米粉;和中餐私宴为主的Gennn。设计师借鉴了一些城市设计的思路,将一部分功能区想象成"Block",在空间内部再次划分出公共性上的内与外。在Gennn中,一条窄隧道,一座长房子和一顶小帐篷被依次布置在大空间中。它们保持功能上的独立,又共同限定出更加开放的PHO的区域。类似的方法也被再一次用在后来的GK餐厅设计中。两个餐厅虽然功能不同,氛围各异,但又完全可以拿来并置讨论。
0
/
50
不能多于50字!
评论
保存于
万
首付及贷款情况请咨询经纪人
项目地址
地图
基本信息
张顾问
18798273648
0
/
50
不能多于50字!
评论
相关的片(内容)