素问·养生馆
更多内容就在:
中式养生馆设计
装修工
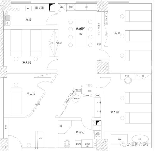
素问·养生馆_3608635素问·养生馆,中式养生馆,休闲养生,工装设计,商业空间,恒鑫设计项目地址:吉融国际A座701项目名称:素问·养生馆项目设计:恒鑫设计
0
/
50
不能多于50字!
评论
保存于
万
首付及贷款情况请咨询经纪人
项目地址
地图
基本信息
张顾问
18798273648
0
/
50
不能多于50字!
评论
相关的片(内容)