巴黎第十七区音乐学院 / Basalt Architecture

更多内容就在:金属外墙设计案例

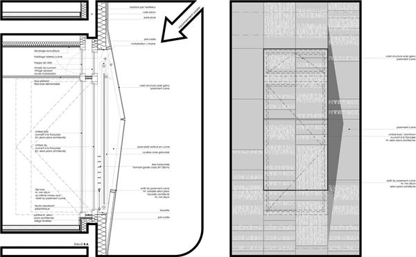
建筑景观材料 巴黎第十七区音乐学院 / Basalt Architecture_3610531巴黎第十七区音乐学院 / Basalt Architecture,金属外墙,金属外立面的设计,金属外立面,室外墙,建筑金属,建筑材料,建筑材料展示,金属网格建筑师: 玄武岩建筑时间: 2013年照片: 塞尔吉奥·格拉齐亚巴黎第十七区音乐学院 / Basalt Architecture_3610531巴黎第十七区音乐学院 / Basalt Architecture_3610531巴黎第十七区音乐学院 / Basalt Architecture_3610531巴黎第十七区音乐学院 / Basalt Architecture_3610531巴黎第十七区音乐学院 / Basalt Architecture_3610531