扇町之家,适老的纯木住宅

更多内容就在:老年公寓/老年住宅设计案例精选

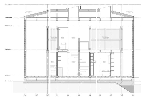
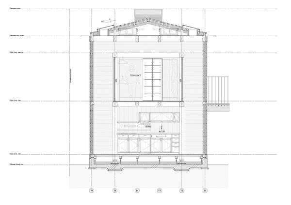
医疗康养设计案例精选 扇町之家,适老的纯木住宅_3646422扇町之家,适老的纯木住宅,住宅设计,木屋,适老住宅,适老化住宅,适老化设计,康养别墅,康养居住区,康养小镇,养老主题,沿湖康养别墅,沿湖康养风景区,养老公园,养老鸟瞰图,老年公寓效果图,老年人活动场地,老年设计,老年社区改造,老人公寓,老人之家,适老化 ,老年公寓点击阅读原文:archdaily建筑设计:宇野友明建筑事务所建造时间:2019摄影师:Ben Hosking扇町之家,适老的纯木住宅_3646422扇町之家,适老的纯木住宅_3646422扇町之家,适老的纯木住宅_3646422扇町之家,适老的纯木住宅_3646422扇町之家,适老的纯木住宅_3646422