轰趴民宿室内,木色调建筑

更多内容就在:乡村民宿设计案例

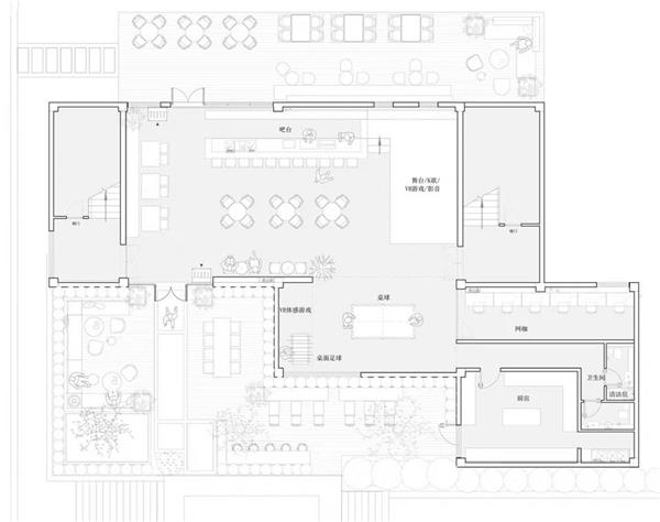
酒店会所设计 轰趴民宿室内,木色调建筑_3669638轰趴民宿室内,木色调建筑,聚会民宿,交流空间,聚会,民宿院子,聚会民宿,交流空间,聚会,民宿院子来源:筑嘉商业连锁设计本项目坐落在溧阳天目山景区,由独栋的别墅改造而成。除了具备传统轰趴的聚会和娱乐功能之外,场所更将自然引入其中。委托目心设计的业主是一位热爱自然、享受社交的生活家,他希望打破城市社交的冷漠,实现社交与自然空间的互动。轰趴民宿室内,木色调建筑_3669638轰趴民宿室内,木色调建筑_3669638轰趴民宿室内,木色调建筑_3669638轰趴民宿室内,木色调建筑_3669638轰趴民宿室内,木色调建筑_3669638