华南理工大学广州国际校区一期工程(公共实验楼)

更多内容就在:国内大学教学楼设计案例

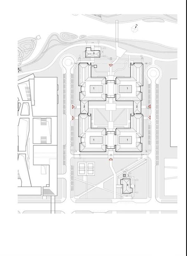
紫悦 华南理工大学广州国际校区一期工程(公共实验楼)_3677684华南理工大学广州国际校区一期工程(公共实验楼),大学建筑,教育建筑,大学,教学楼,大学教学楼,华南理工大学来源:华南理工大学建筑设计研究院项目位置:广州市番禺区南村镇总用地面积:41479 ㎡总建筑面积:54941.4㎡设计时间:2018年竣工时间:2019年设计单位:华南理工大学建筑设计研究院有限公司设计紧扣校区“合璧”理念,传承华工老校区红砖、绿瓦、庭院、中庭等空间场景,其类型化转译,通过 “L”型体量围合出中央内庭院和朝向河面打开的半围合庭院,外加以点式建筑体量,形成高低错落组合的建筑群体。华南理工大学广州国际校区一期工程(公共实验楼)_3677684华南理工大学广州国际校区一期工程(公共实验楼)_3677684华南理工大学广州国际校区一期工程(公共实验楼)_3677684华南理工大学广州国际校区一期工程(公共实验楼)_3677684华南理工大学广州国际校区一期工程(公共实验楼)_3677684