港口住宅
更多内容就在:
乡村住宅建筑设计案例
美丽乡村
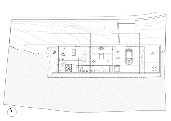
港口住宅_3726597港口住宅设计单位:Maria Castello、 Jose Antonio Molina项目地点:西班牙完成时间:2021项目规模:310平方米来源:Maria Castello
0
/
50
不能多于50字!
评论
保存于
万
首付及贷款情况请咨询经纪人
项目地址
地图
基本信息
张顾问
18798273648
0
/
50
不能多于50字!
评论
相关的片(内容)