曲阜鲁能JW万豪酒店
更多内容就在:
国内城市酒店设计案例
酒店会所设计
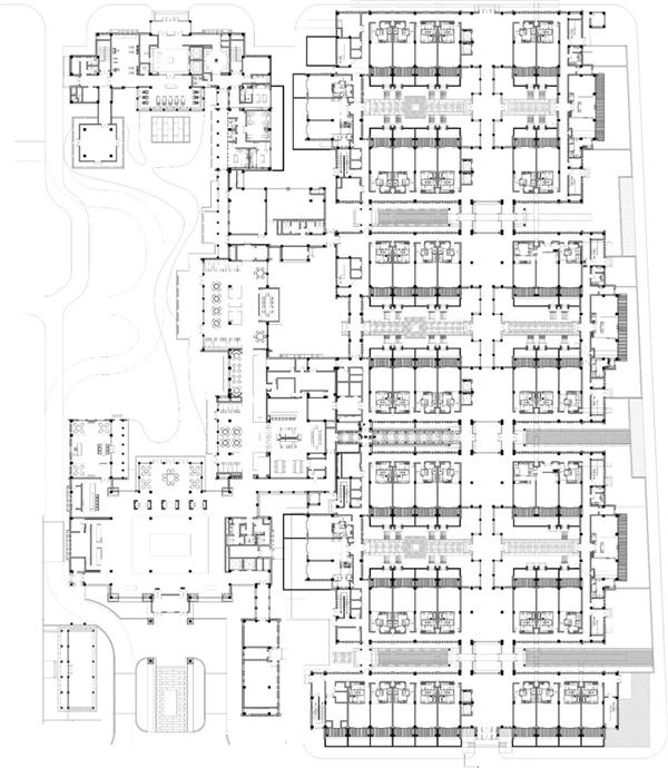
曲阜鲁能JW万豪酒店_3754833曲阜鲁能JW万豪酒店,中国建筑设计研究院,酒店建筑设计,四合院,中式建筑设计,连锁酒店,酒店设计曲阜鲁能JW万豪酒店的选址位于山东曲阜明故城内,与闻名遐迩的曲阜孔庙仅一街之隔。在尊重历史文物的前提下,将五星级酒店的需求融入院落式布局的建筑群中,是设计的首要难点。项目遵循孔庙的轴线、参考孔府的院落形态、借鉴阙里宾舍的合院尺度,从而确定了规划形态——整体轴线与孔庙轴线平行,布局采用当地建筑群南北向层层院落递进的形式,与整个城市肌理吻合。设计单位:中国建筑设计研究院项目地点:山东省曲阜市项目规模: 5.47万平方米项目时间:2018年来源:中国建筑设计研究院中国建筑设计研究院有限公司(简称“中国院”,英文标识CADG)隶属于国务院国资委直属的大型骨干科技型中央企业——中国建设科技集团有限公司。中国院已基本形成了集建筑设计、城乡规划、EPC工程总承包、文化遗产保护、室内设计、景观设计、智能化设计、工程设计咨询、施工图审查、绿色建筑、建筑产业化、BIM三维设计技术、海绵城市、智慧城市、建筑标准、工程制图及图文制作、建筑材料及设备研发等设计、技术、科研于一体的集团化产业构架,提供建设工程一站式全流程建设咨询与服务。
0
/
50
不能多于50字!
评论
保存于
万
首付及贷款情况请咨询经纪人
项目地址
地图
基本信息
张顾问
18798273648
0
/
50
不能多于50字!
评论
相关的片(内容)