磨房改造的度假屋
更多内容就在:
乡村建筑改造设计案例
情怀设计师
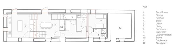
磨房改造的度假屋_3771289磨房改造的度假屋地点:苏格兰设计:WT Architecture
0
/
50
不能多于50字!
评论
保存于
万
首付及贷款情况请咨询经纪人
项目地址
地图
基本信息
张顾问
18798273648
0
/
50
不能多于50字!
评论
相关的片(内容)