松阳先锋陈家铺平民书局
更多内容就在:
乡村图书馆/书店设计案例
美丽乡村
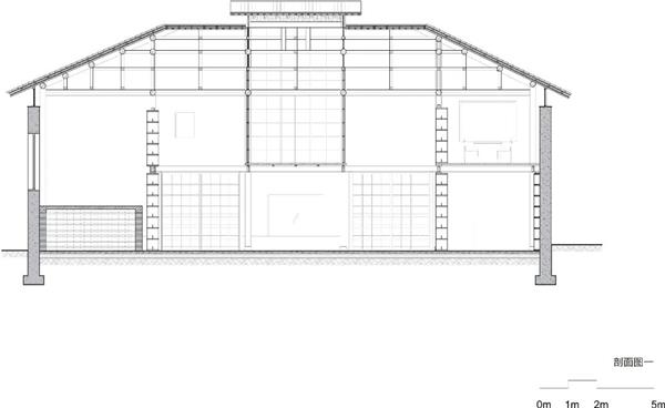
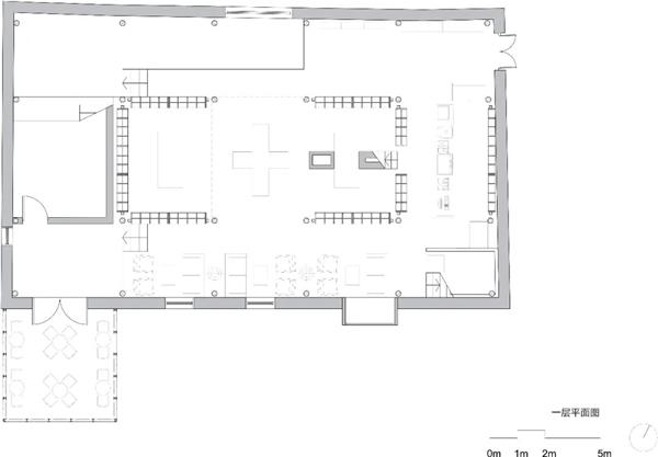
松阳先锋陈家铺平民书局_3811574松阳先锋陈家铺平民书局改扩建增加的建筑体量仍然采用木结构,外立面通过麻绳弱化了体量感,麻绳的虚和夯土墙的实相得益彰,表现乡村建造自然质朴的手工感。项目地点:浙江松阳建筑规模(面积):338 平方米设计/建成时间:2016/2018.06设计单位:张雷联合建筑事务所来源:当代乡土
0
/
50
不能多于50字!
评论
保存于
万
首付及贷款情况请咨询经纪人
项目地址
地图
基本信息
张顾问
18798273648
0
/
50
不能多于50字!
评论
相关的片(内容)