罗克斯伯里之家
更多内容就在:
独栋别墅设计案例精选
居住建筑案例精选
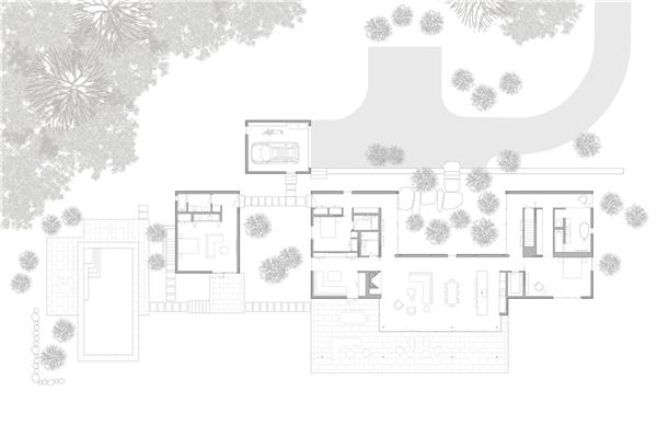
罗克斯伯里之家_3857073罗克斯伯里之家,住宅,别墅,国外住宅,小型建筑,单层住宅客户是艺术画廊的老板,他们希望能够灵活地将自己的家用作纽约画廊的延伸,并将场地的部分区域开放用于特定场地的户外设施。室内空间和室外庭院以不同的尺度呼应,透过房子的长轴视野,将房间与美丽的材料和光线层连接起来,同时在远处欣赏风景。奖项美国建筑奖建筑大师奖-荣誉奖SARA 国家设计优异奖室内设计年度最佳奖BSA/AIANY 住宅设计表彰奖未来住宅奖AIA 纽约住宅评论展被Designboom推荐被《室内设计》杂志评为 2023 年最佳设计书籍顾问结构 Murray Engineering土木 AH Howland Associates景观 LaGuardia Design Group照明顾问 Christine Sciulli Light + Design木制品 Elephants Custom Furniture承包商 Berkshire Wilton Partners摄影 Paul Warchol设计公司:Desai Chia 建筑事务所Desai Chia 的作品包括文化、住宅和商业等项目。2018 年,《建筑杂志》将 Desai Chia 建筑公司评为全美设计卓越公司第 19 名。2021 年,该公司入围 Architizer A+ 公司奖私人住宅建筑奖,并获得了北美最佳和最佳小型公司类别的特别提名。
0
/
50
不能多于50字!
评论
保存于
万
首付及贷款情况请咨询经纪人
项目地址
地图
基本信息
张顾问
18798273648
0
/
50
不能多于50字!
评论
相关的片(内容)