鸿坤艺术活动中心

更多内容就在:艺术文化建筑案例

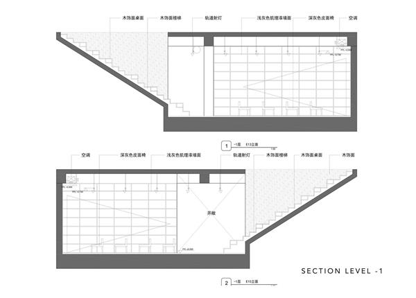
文化建筑设计 Hongkun Art Auditorium-建筑设计_412975鸿坤艺术活动中心,人文建筑,建筑设计,Penda槃达中国,美术馆,鸿坤艺术活动中心,文化建筑,艺术廊,人文建筑,建筑设计,Penda槃达中国,美术馆,鸿坤艺术活动中心,文化建筑,艺术廊项目名称:鸿坤艺术活动中心地点:中国北京朝阳区设计单位:Penda槃达中国面积:270平方米时间:2016年摄影:夏至Hongkun Art Auditorium-建筑设计_412975Hongkun Art Auditorium-建筑设计_412975Hongkun Art Auditorium-建筑设计_412975Hongkun Art Auditorium-建筑设计_412975Hongkun Art Auditorium-建筑设计_412975