The Kino文化中心

更多内容就在:文化中心设计案例精选

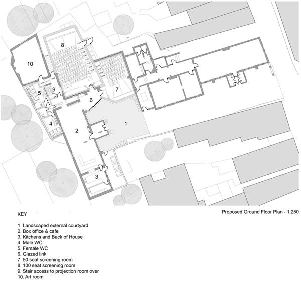
文化建筑全球设计精选 shed-like extension-建筑设计_413218文化中心,设计,建筑,文化,人文建筑,建筑设计“该遗址位于Rye城堡的中心,这是一个受到高度保护的保护区,拥有非常难以到达的地点,”建筑师说。“设计意图是尽可能多地重新利用现有建筑,并拆除改造后的20世纪50年代元素,并战略性地使用之前形成的开口。”shed-like extension-建筑设计_413218shed-like extension-建筑设计_413218shed-like extension-建筑设计_413218shed-like extension-建筑设计_413218shed-like extension-建筑设计_413218