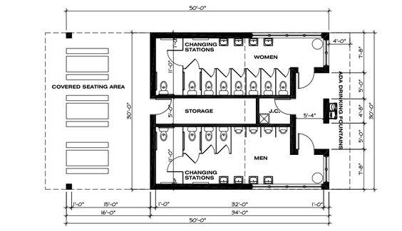
卫生间平面
更多内容就在:
卫生间平面
装修工
卫生间平面_427297卫生间平面
0
/
50
不能多于50字!
评论
保存于
万
首付及贷款情况请咨询经纪人
项目地址
地图
基本信息
张顾问
18798273648
0
/
50
不能多于50字!
评论
相关的片(内容)