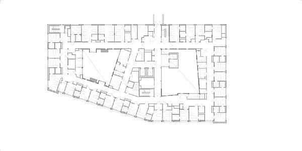
挪威Haraldsplass医院新病房大楼
更多内容就在:
医院平面图设计
医疗康养建筑设计
挪威Haraldsplass医院新病房大楼_427744挪威Haraldsplass医院新病房大楼,国外医院,医院建筑,医疗建筑,医院,医院设计,医院平面图建筑师:C.F. Møller Architects地点:比尔根,挪威
0
/
50
不能多于50字!
评论
保存于
万
首付及贷款情况请咨询经纪人
项目地址
地图
基本信息
张顾问
18798273648
0
/
50
不能多于50字!
评论
相关的片(内容)